
Montana Realty Transfer Certificate 2024-2025 Form


Understanding the Realty Transfer Certificate in Montana
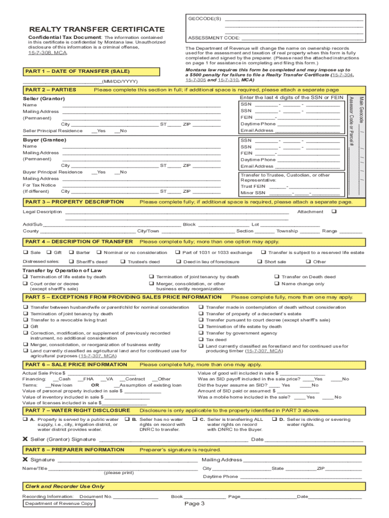
The Montana Realty Transfer Certificate is a crucial document used in real estate transactions within the state. This certificate serves as a declaration of the transfer of property ownership and is essential for recording the transaction with the local government. It typically includes information such as the names of the buyer and seller, the property description, and the sale price. Understanding this form is vital for both buyers and sellers to ensure compliance with state regulations.
Steps to Complete the Realty Transfer Certificate
Completing the Montana Realty Transfer Certificate involves several key steps:
- Gather necessary information about the property, including its legal description and the names of all parties involved.
- Fill out the certificate accurately, ensuring that all details are correct and complete.
- Have the document signed by all parties, as signatures are required for validation.
- Submit the completed certificate to the appropriate county office for recording.
Following these steps helps avoid delays in the property transfer process and ensures that all legal requirements are met.
Obtaining the Realty Transfer Certificate
The Realty Transfer Certificate can be obtained through the local county clerk or recorder’s office in Montana. Most counties provide the form online, allowing users to download and print it. If preferred, individuals can also request a physical copy directly from the office. It is important to check with the specific county for any additional requirements or variations in the form.
Key Elements of the Realty Transfer Certificate
Several key elements must be included in the Realty Transfer Certificate for it to be valid:
- Property Description: A detailed legal description of the property being transferred.
- Buyer and Seller Information: Full names and addresses of both the buyer and seller.
- Sale Price: The agreed-upon price for the property.
- Signatures: Signatures from both parties to validate the transfer.
Ensuring that these elements are correctly filled out is essential for the certificate to be accepted by local authorities.
Legal Use of the Realty Transfer Certificate
The Realty Transfer Certificate is not only a formal requirement but also serves legal purposes in property transactions. It provides a public record of ownership changes, which can be important for future buyers, lenders, and title companies. Properly filing this certificate can protect the rights of the new owner and help prevent disputes over property ownership.
State-Specific Rules for the Realty Transfer Certificate
Montana has specific regulations governing the use of the Realty Transfer Certificate. These rules may include details about filing deadlines, required information, and any associated fees. It is important for individuals involved in real estate transactions to familiarize themselves with these state-specific guidelines to ensure compliance and avoid potential legal issues.
Create this form in 5 minutes or less
Find and fill out the correct mt realty transfer certificate
Related searches to montana realty transfer certificate
Create this form in 5 minutes!
How to create an eSignature for the realty transfer certificate montana
How to create an electronic signature for a PDF online
How to create an electronic signature for a PDF in Google Chrome
How to create an e-signature for signing PDFs in Gmail
How to create an e-signature right from your smartphone
How to create an e-signature for a PDF on iOS
How to create an e-signature for a PDF on Android
People also ask montana realty transfer certificate form
-
What is a Montana Realty Transfer Certificate?
A Montana Realty Transfer Certificate is a document required during the transfer of real estate ownership in Montana. It serves to verify that the property has been properly assessed and that any applicable taxes have been paid. Understanding this certificate is crucial for both buyers and sellers in the real estate market.
-
How do I obtain a Montana Realty Transfer Certificate?
To obtain a Montana Realty Transfer Certificate, you typically need to complete the necessary forms and submit them to your local county clerk or assessor's office. The process may vary slightly by county, so it's advisable to check with local authorities for specific requirements. airSlate SignNow can help streamline this process by allowing you to eSign and send documents efficiently.
-
What are the costs associated with the Montana Realty Transfer Certificate?
The costs for obtaining a Montana Realty Transfer Certificate can vary depending on the county and the specific fees associated with the transfer process. Generally, there may be a nominal fee for filing the certificate. Using airSlate SignNow can help reduce overall costs by providing a cost-effective solution for document management and eSigning.
-
What features does airSlate SignNow offer for managing Montana Realty Transfer Certificates?
airSlate SignNow offers a range of features for managing Montana Realty Transfer Certificates, including customizable templates, secure eSigning, and document tracking. These features ensure that your documents are handled efficiently and securely, making the transfer process smoother for all parties involved.
-
How can airSlate SignNow benefit real estate professionals dealing with Montana Realty Transfer Certificates?
Real estate professionals can benefit from airSlate SignNow by simplifying the process of handling Montana Realty Transfer Certificates. The platform allows for quick eSigning and document sharing, reducing the time spent on paperwork. This efficiency can lead to faster transactions and improved client satisfaction.
-
Can I integrate airSlate SignNow with other tools for managing Montana Realty Transfer Certificates?
Yes, airSlate SignNow offers integrations with various tools and platforms commonly used in real estate transactions. This allows you to seamlessly manage Montana Realty Transfer Certificates alongside other essential documents and workflows, enhancing your overall productivity and efficiency.
-
Is airSlate SignNow secure for handling sensitive documents like the Montana Realty Transfer Certificate?
Absolutely, airSlate SignNow prioritizes security and compliance, ensuring that all documents, including the Montana Realty Transfer Certificate, are protected. The platform employs advanced encryption and security measures to safeguard sensitive information, giving users peace of mind when managing their documents.
Get more for montana realty transfer certificate
- Initial incident response form form for initial incident response report ihs
- Form 2728 5520867
- Lawrence twp bd of trustees v canal fulton ohio form
- Request for credit for attendance at a cle activity outside ohio ccle form 1a
- Mail payment form franklin county municipal court clerk website
- Fillable online pickerington mayors court fax email print form
- Sample petition for declaration of nullity of marriage form
- Residential rental form
Find out other realty transfer certificate montana
- eSignature Ohio Orthodontists Business Letter Template Computer
- eSignature North Dakota Orthodontists Lease Template Now
- eSignature North Dakota Orthodontists Lease Template Later
- eSignature North Dakota Orthodontists Lease Template Myself
- eSignature Ohio Orthodontists Business Letter Template Mobile
- eSignature North Dakota Orthodontists Lease Template Free
- How To eSignature Ohio Orthodontists Profit And Loss Statement
- eSignature North Dakota Orthodontists Lease Template Secure
- eSignature North Dakota Orthodontists Lease Template Fast
- How Do I eSignature Ohio Orthodontists Profit And Loss Statement
- eSignature North Dakota Orthodontists Lease Template Simple
- eSignature Ohio Orthodontists Business Letter Template Now
- eSignature North Dakota Orthodontists Lease Template Easy
- eSignature North Dakota Orthodontists Lease Template Safe
- Help Me With eSignature Ohio Orthodontists Profit And Loss Statement
- eSignature Ohio Orthodontists Business Letter Template Later
- How Can I eSignature Ohio Orthodontists Profit And Loss Statement
- How To eSignature Ohio Orthodontists Business Letter Template
- How Do I eSignature Ohio Orthodontists Business Letter Template
- eSignature Ohio Orthodontists Business Letter Template Myself