
Ds 3032 2019-2025 Form


Understanding the DS-3032 Form
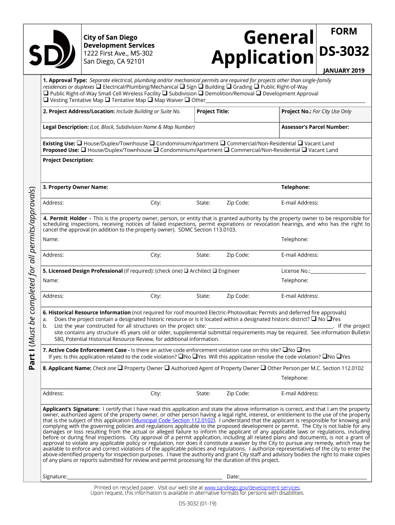
The DS-3032 form, also known as the General Application DS-3032, is a critical document used in the process of applying for a U.S. passport. This form is primarily utilized by individuals who are applying for a passport on behalf of a minor or those who are renewing their passport. It serves as a formal request for the issuance of a passport and includes essential information about the applicant, such as their name, date of birth, and other identifying details.
Steps to Complete the DS-3032 Form
Completing the DS-3032 form requires careful attention to detail to ensure accuracy and compliance with U.S. regulations. Follow these steps for a smooth application process:
- Gather necessary documents, including proof of citizenship and identification.
- Fill out the DS-3032 form with accurate personal information.
- Review the completed form for any errors or omissions.
- Submit the form along with any required fees and supporting documents to the appropriate passport agency.
Legal Use of the DS-3032 Form
The DS-3032 form is legally binding when completed and submitted according to U.S. regulations. It is essential that the information provided is truthful and accurate, as any discrepancies can lead to delays or denials in passport issuance. The form must be signed by the applicant or the individual applying on behalf of a minor, affirming the accuracy of the information provided.
Who Issues the DS-3032 Form
The DS-3032 form is issued by the U.S. Department of State. It is part of the official process for obtaining a passport, and applicants must ensure they are using the most current version of the form. The Department of State provides resources and guidance on how to properly complete and submit the form to facilitate a smooth application process.
Required Documents for the DS-3032 Form
When submitting the DS-3032 form, applicants must include several key documents to support their application. These typically include:
- A completed DS-3032 form.
- Proof of U.S. citizenship, such as a birth certificate or naturalization certificate.
- A valid form of identification, such as a driver’s license or government-issued ID.
- Passport photos that meet the official requirements.
Application Process & Approval Time for the DS-3032 Form
The application process for the DS-3032 form involves submitting the completed form along with required documents to the appropriate passport agency. The approval time can vary based on several factors, including the volume of applications being processed at the time. Generally, applicants can expect processing times to range from a few weeks to several months, depending on whether expedited services are requested.
Quick guide on how to complete ds 3032
Prepare ds 3032 effortlessly on any gadget
Digital document administration has become increasingly favored among businesses and individuals alike. It serves as an excellent eco-friendly alternative to conventional printed and signed papers, as you can easily find the necessary form and securely store it online. airSlate SignNow provides all the features you require to create, modify, and eSign your documents swiftly without interruptions. Handle ds 3032 on any device using airSlate SignNow's Android or iOS applications and enhance any document-related process today.
How to modify and eSign ds 3032 form with ease
- Find general application ds 3032 and click on Get Form to commence.
- Utilize the tools available to fill out your document.
- Highlight signNow sections of the documents or redact sensitive information with tools that airSlate SignNow provides specifically for that purpose.
- Create your eSignature with the Sign feature, which takes mere seconds and holds the same legal validity as a conventional ink signature.
- Verify the information and then click the Done button to secure your modifications.
- Select your preferred method to share your form, via email, text (SMS), or invitation link, or download it to your computer.
Eliminate concerns about lost or misplaced documents, tedious form searches, or errors that necessitate printing new copies. airSlate SignNow addresses all your document management needs in just a few clicks from your chosen device. Modify and eSign ds3032 to ensure exceptional communication at every stage of your form preparation with airSlate SignNow.
Create this form in 5 minutes or less
Find and fill out the correct general application ds 3032
Related searches to ds 3032
Create this form in 5 minutes!
How to create an eSignature for the ds 3032 form
How to create an electronic signature for your PDF document in the online mode
How to create an electronic signature for your PDF document in Chrome
How to make an electronic signature for putting it on PDFs in Gmail
The way to create an electronic signature right from your mobile device
How to create an electronic signature for a PDF document on iOS devices
The way to create an electronic signature for a PDF on Android devices
People also ask ds3032
-
What is the ds 3032 form and how does airSlate SignNow assist with it?
The ds 3032 form is a vital document used for various applications, particularly in immigration processes. airSlate SignNow simplifies the completion and eSigning of the ds 3032 by providing an intuitive interface and secure electronic signature capabilities.
-
Is airSlate SignNow a cost-effective solution for managing the ds 3032?
Yes, airSlate SignNow offers competitive pricing plans that cater to businesses of all sizes. By using our platform for your ds 3032 paperwork, you can save time and reduce costs associated with printing and mailing physical documents.
-
What features does airSlate SignNow provide for the ds 3032?
airSlate SignNow offers features like customizable templates, drag-and-drop editing, and secure eSigning, which are essential for efficiently handling the ds 3032. With these tools, you can ensure your documents are correctly filled out and signed in compliance with regulations.
-
Can I integrate airSlate SignNow with other applications while handling the ds 3032?
Absolutely, airSlate SignNow supports a variety of integrations with popular applications like Google Workspace, Microsoft Office, and CRMs. This makes it easy to incorporate the ds 3032 process into your existing workflow.
-
How can using airSlate SignNow benefit my business when working with the ds 3032?
Using airSlate SignNow for the ds 3032 not only streamlines your document management processes but also enhances collaboration among team members. This leads to faster approvals and increased productivity as documents can be eSigned anytime, anywhere.
-
Is there a mobile app for managing the ds 3032 with airSlate SignNow?
Yes, airSlate SignNow features a mobile app that allows you to manage the ds 3032 from your smartphone or tablet. This mobile accessibility ensures that you can handle document signing and management on-the-go, ensuring efficiency and convenience.
-
How secure is my information when using airSlate SignNow for the ds 3032?
Security is a top priority for airSlate SignNow. When handling the ds 3032, your data is protected with advanced encryption and compliance with industry standards, ensuring that your sensitive information remains confidential and secure.
Get more for ds 3032
- Omniform form
- Request a demo form
- Iowa rebate claim form alliantenergy com
- Case presentation form
- Roommate questionnaire for adults pdf 100535577 form
- Form m25 wind energy production report minnesota department revenue state mn
- Cdc license exempt provider application form
- No download needed ndoa form
Find out other ds 3032 form
- Electronic signature California Insurance Lease Agreement Form Now
- Electronic signature Arizona High Tech LLC Operating Agreement Computer
- Electronic signature California Insurance Permission Slip Now
- Electronic signature California Insurance Permission Slip Later
- Electronic signature California Insurance Lease Agreement Form Later
- Electronic signature California Insurance Permission Slip Myself
- Electronic signature Arizona High Tech LLC Operating Agreement Mobile
- Electronic signature California Insurance Permission Slip Free
- Electronic signature California Insurance Permission Slip Secure
- Electronic signature Arizona High Tech LLC Operating Agreement Now
- Electronic signature California Insurance Lease Agreement Form Myself
- Electronic signature California Insurance Permission Slip Fast
- Electronic signature Arizona High Tech LLC Operating Agreement Later
- Electronic signature California Insurance Permission Slip Simple
- Electronic signature California Insurance Lease Agreement Form Free
- Electronic signature California Insurance Permission Slip Easy
- Electronic signature Arizona High Tech LLC Operating Agreement Myself
- Electronic signature California Insurance Permission Slip Safe
- Electronic signature Arizona High Tech LLC Operating Agreement Free
- Electronic signature California Insurance Lease Agreement Form Secure