
Or Cppr for Dallas Oregon 2019-2025 Form


What is the Form Property
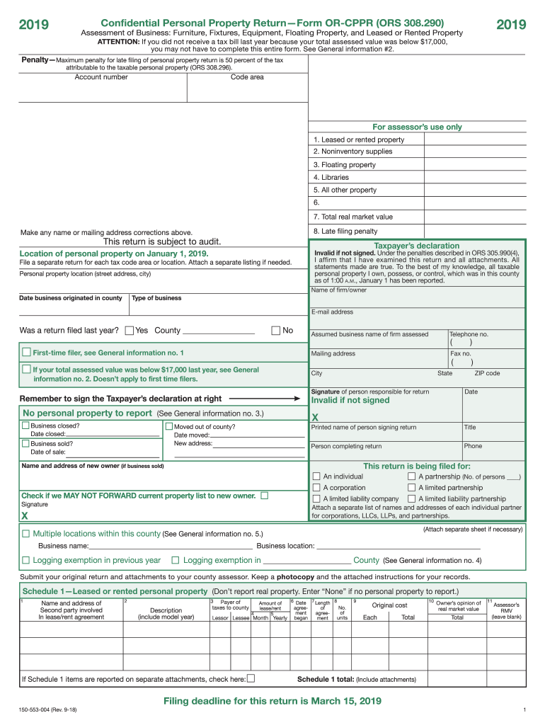
The 2019 form or cppr for Dallas, Oregon, is a crucial document used for reporting property values for tax purposes. This form allows property owners to declare the assessed value of their property to the local tax authority. Completing this form accurately is essential for ensuring that property taxes are assessed correctly and fairly. The form is specifically designed to capture various details about the property, including its location, size, and any improvements made.
Steps to complete the Form Property
Completing the 2019 form or cppr involves several key steps to ensure accuracy and compliance. Start by gathering all necessary information about your property, including its legal description and current assessed value. Next, fill out the form with the required details, ensuring that all sections are completed thoroughly. After filling out the form, review it for any errors or omissions. Once verified, submit the form to the appropriate local tax authority by the designated deadline to avoid penalties.
Legal use of the Form Property
The legal use of the 2019 form or cppr is governed by state laws and regulations regarding property taxation. This form is legally binding and must be completed truthfully to avoid legal repercussions. Misrepresentation of property values can lead to penalties, including fines or increased tax assessments. Understanding the legal implications of this form is essential for property owners to ensure compliance with local tax laws.
Filing Deadlines / Important Dates
Filing deadlines for the 2019 form or cppr are critical for property owners in Dallas, Oregon. Typically, the form must be submitted by a specific date each year, often aligned with the local tax assessment calendar. Missing the deadline can result in penalties or the inability to appeal property assessments. It is advisable to check with the local tax authority for the exact due date and any potential extensions that may be available.
Required Documents
When completing the 2019 form or cppr, property owners must provide certain documents to support their claims. Required documents may include previous tax assessments, property deeds, and any documentation related to improvements made on the property. Ensuring that all necessary documents are included with the form submission is essential for a smooth processing experience and to substantiate the reported property value.
Form Submission Methods (Online / Mail / In-Person)
The 2019 form or cppr can typically be submitted through various methods, including online submission, mailing a physical copy, or delivering it in person to the local tax office. Each method has its own advantages, such as convenience for online submissions or direct confirmation for in-person delivery. Property owners should choose the submission method that best suits their needs while ensuring compliance with local regulations.
Who Issues the Form
The 2019 form or cppr is issued by the local tax authority in Dallas, Oregon. This authority is responsible for managing property assessments and ensuring that property taxes are collected fairly. Property owners can obtain the form directly from the tax authority's office or their official website. It is important to use the most current version of the form to ensure compliance with local tax laws.
Quick guide on how to complete oregon form ors
Effortlessly Prepare oregon form ors on Any Device
Digital document management has gained traction among businesses and individuals alike. It serves as an ideal eco-friendly alternative to traditional printed and signed documents, as you can locate the necessary form and securely store it online. airSlate SignNow equips you with all the tools required to create, modify, and electronically sign your documents quickly and without hindrance. Manage 2019 form or cppr for dallas oregon on any device using airSlate SignNow's Android or iOS applications and enhance any document-centric workflow today.
How to Modify and Electronically Sign 553 004 with Ease
- Locate or cppr form and click on Get Form to initiate the process.
- Employ the tools we provide to complete your form.
- Emphasize pertinent sections of your documents or obscure sensitive information with features specifically offered by airSlate SignNow for that purpose.
- Create your signature using the Sign tool, which takes just moments and carries the same legal significance as a conventional wet ink signature.
- Review all the details and click on the Done button to finalize your modifications.
- Select your preferred method to share your form, whether by email, text message (SMS), invite link, or download it to your computer.
Eliminate the hassle of missing or misplaced documents, the frustration of searching for forms, or the need to print new document copies due to errors. airSlate SignNow addresses your document management needs in just a few clicks from any device you choose. Modify and electronically sign form cppr and ensure effective communication at every stage of the document preparation process with airSlate SignNow.
Create this form in 5 minutes or less
Find and fill out the correct 2018 or cppr
Related searches to 2019 form cppr
Create this form in 5 minutes!
How to create an eSignature for the 2019 form or cppr
How to make an eSignature for the 2019 Form Or Cppr Confidential Personal Property Return 150 in the online mode
How to make an eSignature for your 2019 Form Or Cppr Confidential Personal Property Return 150 in Chrome
How to make an eSignature for putting it on the 2019 Form Or Cppr Confidential Personal Property Return 150 in Gmail
How to make an electronic signature for the 2019 Form Or Cppr Confidential Personal Property Return 150 right from your smartphone
How to generate an electronic signature for the 2019 Form Or Cppr Confidential Personal Property Return 150 on iOS devices
How to create an eSignature for the 2019 Form Or Cppr Confidential Personal Property Return 150 on Android OS
People also ask 2019 form property
-
What is the 2019 form or cppr for Dallas Oregon?
The 2019 form or cppr for Dallas Oregon is a specific document required for certain official transactions. This form helps in ensuring compliance with local regulations and is essential for businesses operating in the area. Understanding this form will streamline your documentation process.
-
How can airSlate SignNow help with the 2019 form or cppr for Dallas Oregon?
AirSlate SignNow provides an efficient way to send and eSign the 2019 form or cppr for Dallas Oregon. Our platform simplifies the workflow, allowing for quick approvals and ensuring your documents are signed securely and legally. This eliminates the hassle of physical paperwork in your business operations.
-
What are the pricing options for using airSlate SignNow for the 2019 form or cppr for Dallas Oregon?
AirSlate SignNow offers flexible pricing plans that can accommodate your needs for the 2019 form or cppr for Dallas Oregon. Plans vary based on the number of users and features offered. Visit our pricing page to choose the best option for your business.
-
What features does airSlate SignNow offer for handling the 2019 form or cppr for Dallas Oregon?
AirSlate SignNow includes features such as document templates, secure eSignature, and real-time tracking for the 2019 form or cppr for Dallas Oregon. These features enhance productivity and ensure your documents are handled efficiently from start to finish.
-
Are there any benefits of using airSlate SignNow for the 2019 form or cppr for Dallas Oregon?
Yes, using airSlate SignNow for the 2019 form or cppr for Dallas Oregon offers numerous benefits, including time savings and reduced paper usage. The digital signature process is compliant with legal standards, ensuring your documents are valid while streamlining approval processes.
-
Can airSlate SignNow integrate with other tools for the 2019 form or cppr for Dallas Oregon?
Absolutely! AirSlate SignNow seamlessly integrates with various popular tools and applications to manage the 2019 form or cppr for Dallas Oregon. This integration enables a smooth workflow and helps centralize your document management for better efficiency.
-
Is it secure to use airSlate SignNow for the 2019 form or cppr for Dallas Oregon?
Yes, airSlate SignNow prioritizes security, especially for documents like the 2019 form or cppr for Dallas Oregon. Our platform utilizes bank-level encryption and complies with international data protection regulations, ensuring your sensitive information is well-protected.
Get more for 2019 or cppr form
- Form jotform com83366485500156soteria house residency application jotform
- Inspection notice template form
- Stratford section 8 application form
- Department of occupational therapy san jose state universitydepartment of occupational therapy san jose state form
- Special event planning request form
- Uva swim lessons form
- Overtime approval form 12481664
- Atp checkride checklist form
Find out other 2019 or cppr
- eSign Minnesota Sports Arbitration Agreement Online
- eSign West Virginia Real Estate Separation Agreement Fast
- eSign West Virginia Real Estate Separation Agreement Simple
- How To eSign West Virginia Real Estate Separation Agreement
- How Do I eSign West Virginia Real Estate Separation Agreement
- Help Me With eSign West Virginia Real Estate Separation Agreement
- How Can I eSign West Virginia Real Estate Separation Agreement
- eSign West Virginia Real Estate Separation Agreement Easy
- eSign Minnesota Sports Arbitration Agreement Computer
- Can I eSign West Virginia Real Estate Separation Agreement
- eSign West Virginia Real Estate Separation Agreement Safe
- eSign Minnesota Sports Arbitration Agreement Mobile
- How To eSign West Virginia Real Estate Business Associate Agreement
- How Do I eSign West Virginia Real Estate Business Associate Agreement
- Help Me With eSign West Virginia Real Estate Business Associate Agreement
- eSign Minnesota Sports Arbitration Agreement Now
- How Can I eSign West Virginia Real Estate Business Associate Agreement
- Can I eSign West Virginia Real Estate Business Associate Agreement
- How To eSign Minnesota Sports Arbitration Agreement
- eSign Minnesota Sports Arbitration Agreement Later