
Grayson Cad 2011-2025 Form


What is the Grayson CAD?
The Grayson CAD, or Grayson County Appraisal District, is a governmental entity responsible for determining the value of properties within Grayson County, Texas. This valuation is essential for property tax purposes, ensuring that property taxes are assessed fairly and accurately. The Grayson CAD plays a crucial role in the local economy by providing essential data that influences property taxes, local funding, and community services.
How to use the Grayson CAD
Using the Grayson CAD involves accessing their online resources to find property information, submit forms, and understand local tax assessments. Property owners can visit the Grayson CAD website to search for their property details, view appraisal values, and learn about exemptions that may apply to them. The site also provides resources for filing appeals if a property owner disagrees with their assessed value.
Steps to complete the Grayson CAD
Completing the necessary forms for the Grayson CAD typically involves several steps:
- Gather relevant property information, including the property address and identification numbers.
- Access the Grayson CAD website to find the appropriate forms for your needs, such as property tax exemptions or appeals.
- Fill out the forms accurately, ensuring all required information is included.
- Submit the completed forms through the designated method, whether online, by mail, or in person.
Legal use of the Grayson CAD
The legal use of the Grayson CAD is governed by Texas property tax laws. Property owners must adhere to these laws when submitting forms, appealing assessments, or claiming exemptions. Understanding the legal framework ensures compliance and helps property owners take full advantage of available benefits, such as homestead exemptions.
Eligibility Criteria
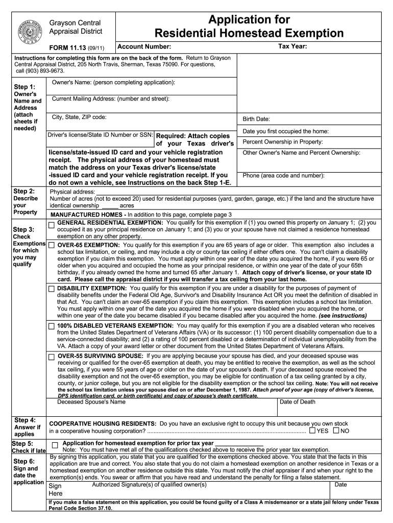
Eligibility for various programs and exemptions through the Grayson CAD often depends on specific criteria. For instance, to qualify for a homestead exemption, a property must be the primary residence of the owner, and the owner must apply within the designated timeframe. Other exemptions may have different requirements, such as age, disability status, or veteran status.
Required Documents
When dealing with the Grayson CAD, certain documents are typically required to support applications for exemptions or appeals. Commonly needed documents include:
- Proof of identity, such as a driver's license or state ID.
- Documentation proving ownership of the property.
- Any relevant financial documents that support the claim for exemptions.
Form Submission Methods
Submitting forms to the Grayson CAD can be done through various methods, ensuring convenience for property owners. Options typically include:
- Online submission through the Grayson CAD website, which allows for quick processing.
- Mailing completed forms to the Grayson CAD office, ensuring to check for the correct address.
- In-person submission at the Grayson CAD office, where assistance may be available for filling out forms.
Quick guide on how to complete grayson county homestead exemption
Effortlessly prepare grayson county homestead exemption on any device
Digital document management has become increasingly popular among companies and individuals alike. It serves as an ideal environmentally friendly option to conventional printed and signed documents, since you can access the right forms and securely store them online. airSlate SignNow provides all the necessary tools to create, edit, and electronically sign your documents swiftly and without obstacles. Manage grayson cad on any device using the airSlate SignNow apps available for Android or iOS and enhance any document-centric workflow today.
How to edit and eSign grayson county homestead exemption with ease
- Obtain graysoncad and then click Get Form to begin.
- Utilize the tools we offer to fill out your document.
- Emphasize important sections of your documents or conceal sensitive information with tools specifically provided by airSlate SignNow for that purpose.
- Create your eSignature using the Sign feature, which only takes seconds and carries the same legal validity as a traditional handwritten signature.
- Review the information and then click the Done button to save your changes.
- Select your preferred method of delivering the form, whether via email, SMS, invitation link, or download it to your computer.
Say goodbye to lost or misplaced documents, tedious form searches, or mistakes that necessitate printing new document copies. airSlate SignNow meets all your document management needs with just a few clicks from any device you choose. Edit and eSign grayson cad to ensure outstanding communication at every stage of your form preparation process with airSlate SignNow.
Create this form in 5 minutes or less
Find and fill out the correct grayson cad
Related searches to graysoncad
Create this form in 5 minutes!
How to create an eSignature for the grayson cad
The way to make an electronic signature for a PDF file in the online mode
The way to make an electronic signature for a PDF file in Chrome
The best way to create an electronic signature for putting it on PDFs in Gmail
How to generate an electronic signature straight from your smartphone
The way to generate an eSignature for a PDF file on iOS devices
How to generate an electronic signature for a PDF document on Android
People also ask graysoncad
-
What is Grayson CAD and how does it work with airSlate SignNow?
Grayson CAD is a comprehensive solution that streamlines the design and documentation process for businesses. When integrated with airSlate SignNow, Grayson CAD enables users to easily send and eSign critical documents directly from the platform, enhancing workflow efficiency and ensuring that all necessary approvals are captured promptly.
-
What are the pricing options for Grayson CAD with airSlate SignNow?
Grayson CAD offers several pricing tiers to suit various business needs. By subscribing to airSlate SignNow, businesses can access competitive pricing models that include flexible plans designed to accommodate different volumes of document signing and processing requirements.
-
What features does Grayson CAD provide when used with airSlate SignNow?
When combined with airSlate SignNow, Grayson CAD offers a robust set of features, including customizable templates, real-time collaboration, and automated workflows. These features help reduce turnaround times and create a seamless experience for users in managing their eSigning needs.
-
Are there any benefits to using Grayson CAD with airSlate SignNow?
Absolutely! Using Grayson CAD with airSlate SignNow provides enhanced efficiency, as it combines document design with secure eSigning in one platform. This integration allows teams to expedite their document workflows, boost productivity, and reduce administrative burdens associated with traditional paper processes.
-
Can Grayson CAD integrate with other software tools?
Yes, Grayson CAD is designed to work seamlessly with various software applications to enhance productivity. When paired with airSlate SignNow, users can easily integrate their existing tools, including CRM and project management systems, for a more streamlined work process.
-
How does airSlate SignNow ensure the security of documents signed with Grayson CAD?
airSlate SignNow prioritizes security by implementing advanced encryption protocols and secure storage solutions. Documents signed through Grayson CAD and airSlate SignNow meet compliance standards, ensuring that your sensitive information is protected throughout the eSigning process.
-
Is there support available for users of Grayson CAD with airSlate SignNow?
Yes, users of Grayson CAD and airSlate SignNow have access to comprehensive support resources. This includes troubleshooting guides, FAQs, and dedicated customer support channels to assist you with any queries or challenges you may face while using the platform.
Get more for grayson cad
Find out other grayson county homestead exemption
- Sign Utah Sports LLC Operating Agreement Easy
- How Can I Sign North Carolina Real Estate LLC Operating Agreement
- Can I Sign Utah Sports LLC Operating Agreement
- Can I Sign North Carolina Real Estate LLC Operating Agreement
- Sign Utah Sports LLC Operating Agreement Safe
- Sign Oregon Orthodontists IOU Online
- Sign Oregon Orthodontists IOU Computer
- Sign Oregon Orthodontists IOU Mobile
- Sign Oregon Orthodontists IOU Now
- How To Sign Oregon Orthodontists IOU
- Sign Oregon Orthodontists IOU Later
- Sign Oregon Orthodontists IOU Myself
- Sign Oregon Orthodontists IOU Free
- How Do I Sign Oregon Orthodontists IOU
- Sign Oregon Orthodontists IOU Secure
- Sign Oregon Orthodontists IOU Fast
- Help Me With Sign Oregon Orthodontists IOU
- Sign Oregon Orthodontists IOU Simple
- Sign Oregon Orthodontists Last Will And Testament Online
- Sign Oregon Orthodontists IOU Easy