
City of Delaware Contractor Registration Form


What is the City Of Delaware Contractor Registration
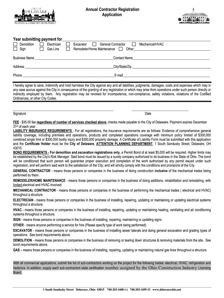
The City of Delaware Contractor Registration is a formal requirement for contractors operating within the city limits. This registration ensures that all contractors comply with local regulations and standards, promoting safety and quality in construction and related services. It serves as a record of licensed contractors, which helps residents and businesses identify qualified professionals for their projects.
How to Obtain the City Of Delaware Contractor Registration
To obtain the City of Delaware Contractor Registration, applicants must complete a registration form available through the city's official website or municipal office. The process typically requires submitting relevant documentation, such as proof of liability insurance, business licenses, and any necessary trade certifications. Additionally, applicants may need to pay a registration fee, which varies depending on the type of work they intend to perform.
Steps to Complete the City Of Delaware Contractor Registration
Completing the City of Delaware Contractor Registration involves several key steps:
- Gather required documents, including proof of insurance and business licenses.
- Fill out the registration form accurately, ensuring all information is complete.
- Submit the form along with any required fees to the appropriate city department.
- Await confirmation of registration from the city, which may include a review process.
Legal Use of the City Of Delaware Contractor Registration
The legal use of the City of Delaware Contractor Registration is essential for ensuring that contractors adhere to local laws and regulations. This registration provides a legal framework that protects both contractors and clients by ensuring that all parties involved are compliant with safety standards, building codes, and licensing requirements. Failure to register can result in penalties and hinder a contractor's ability to operate legally within the city.
Required Documents for the City Of Delaware Contractor Registration
When applying for the City of Delaware Contractor Registration, several documents are typically required:
- Proof of liability insurance.
- Business license or registration.
- Trade certifications, if applicable.
- Identification documents of the applicant.
Form Submission Methods
The City of Delaware Contractor Registration form can usually be submitted through multiple methods to accommodate applicants. These methods may include:
- Online submission via the city’s official website.
- Mailing the completed form to the designated city office.
- In-person submission at the city’s municipal office.
Quick guide on how to complete hvac delaware ohio
Effortlessly Prepare hvac delaware ohio on Any Device
Digital document management has become increasingly favored by businesses and individuals alike. It offers a fantastic eco-friendly substitute for traditional printed and signed documents, enabling you to access the right form and securely store it online. airSlate SignNow provides all the tools you require to create, modify, and eSign your documents swiftly without any delays. Manage hvac delaware ohio on any device using the airSlate SignNow applications for Android or iOS and simplify any document-related task today.
How to Edit and eSign city of delaware contractor registration with Ease
- Locate hvac delaware ohio and click on Get Form to begin.
- Use the tools we offer to complete your form.
- Select important sections of the documents or redact sensitive information with tools that airSlate SignNow provides specifically for this purpose.
- Create your eSignature using the Sign tool, which only takes seconds and holds the same legal validity as a conventional ink signature.
- Review the information and then click on the Done button to save your changes.
- Decide how you want to send your form, whether by email, text message (SMS), or invite link, or download it to your computer.
Say goodbye to lost or misplaced documents, tedious form searching, or mistakes requiring new copies. airSlate SignNow meets all your document management needs in just a few clicks from your preferred device. Modify and eSign city of delaware contractor registration to guarantee exceptional communication throughout the form preparation process with airSlate SignNow.
Create this form in 5 minutes or less
Related searches to hvac delaware ohio
Create this form in 5 minutes!
How to create an eSignature for the city of delaware contractor registration
The way to make an eSignature for your PDF file in the online mode
The way to make an eSignature for your PDF file in Chrome
The way to make an eSignature for putting it on PDFs in Gmail
The way to make an electronic signature straight from your smartphone
The way to make an electronic signature for a PDF file on iOS devices
The way to make an electronic signature for a PDF document on Android
People also ask city of delaware contractor registration
-
What HVAC services are available in Delaware, Ohio?
In Delaware, Ohio, various HVAC services are offered, including installation, repair, and maintenance of heating and cooling systems. Whether you need a new air conditioning unit or routine maintenance, local professionals can provide solutions to ensure optimal efficiency. It's crucial to choose the right HVAC provider in Delaware, Ohio, for your specific needs.
-
How much do HVAC services typically cost in Delaware, Ohio?
The cost of HVAC services in Delaware, Ohio, can vary widely depending on the complexity of the job and the specific services required. On average, homeowners can expect to pay between $150 to $500 for repairs and maintenance. For a full system installation, costs may range from $3,000 to $7,000, depending on the system chosen.
-
What are the benefits of regular HVAC maintenance in Delaware, Ohio?
Regular HVAC maintenance in Delaware, Ohio, can extend the lifespan of your heating and cooling systems and improve energy efficiency, ultimately saving you money on utility bills. Regular inspections also help identify potential issues early, preventing costly repairs down the line. This proactive approach ensures the comfort and safety of your home.
-
How do I choose the right HVAC system for my home in Delaware, Ohio?
Choosing the right HVAC system for your home in Delaware, Ohio, involves considering factors like system size, energy efficiency, and specific heating or cooling needs. It’s advisable to consult with local HVAC professionals who can recommend the most suitable systems based on your home's square footage and insulation. Investing in an energy-efficient HVAC system can lead to long-term savings.
-
What HVAC brands are recommended for homes in Delaware, Ohio?
Some of the top HVAC brands recommended for homes in Delaware, Ohio, include Trane, Goodman, and Carrier. These brands are known for their reliability, energy efficiency, and innovative technology. Consulting with local HVAC contractors can further guide you in selecting a brand that best fits your needs and budget.
-
Are there any energy-saving HVAC options available in Delaware, Ohio?
Yes, Delaware, Ohio, offers a variety of energy-saving HVAC options, including high-efficiency air conditioners and programmable thermostats. Many of these systems are designed to minimize energy consumption while providing the same level of comfort. Investing in energy-efficient HVAC equipment can qualify you for tax credits and rebates.
-
What integration options are available for smart HVAC systems in Delaware, Ohio?
Smart HVAC systems in Delaware, Ohio, often come with integration options that allow you to control your heating and cooling remotely via smartphones or smart home devices. These systems may support integration with platforms such as Google Home and Amazon Alexa. Consider these smart features for enhanced convenience and energy efficiency.
Get more for hvac delaware ohio
- X usrman sd indd 209 200 103 form
- Tranquillite entreprise fiche de securisation des interventions et de protection inscription a la demande surveillance form
- 3 part scrap tire shippingreceiving form
- 20003 bobexb venosan order form
- Wps for fillet weld form
- Vfw buddy poppy order form 43031037
- Application for registration by an individual business names goinvest gov form
- Bnew mexico form
Find out other city of delaware contractor registration
- eSign Courts Word Mississippi Fast
- eSign Courts Form Montana Online
- eSign Courts Form Montana Computer
- Can I eSign Montana Courts Claim
- eSign Courts Form Montana Mobile
- eSign Courts Form Montana Now
- eSign Courts Word Mississippi Simple
- eSign Courts Form Montana Later
- eSign Courts Form Montana Myself
- eSign Courts Form Montana Free
- eSign Courts Word Mississippi Easy
- eSign Courts Form Montana Secure
- eSign Courts Form Montana Fast
- eSign Courts Form Montana Simple
- eSign Montana Courts Contract Online
- eSign Courts Word Mississippi Safe
- eSign Courts Form Montana Easy
- eSign Montana Courts Contract Computer
- eSign Courts Form Montana Safe
- eSign Montana Courts Contract Mobile